Trilocale in vendita

Roma, Via Salvatore d'Amelio - Baldo Degli Ubaldi
€ 495.000
4 locali 4 locali
112 Mq 112 Mq
2 bagni 2 bagni

Trilocale in vendita

Roma, Via Salvatore d'Amelio - Baldo Degli Ubaldi

Descrizione annuncio

VIA SALVATORE D’AMELIO

I quattro motivi per sceglierlo:

-Contesto residenziale tranquillo

-Ottimo come investimento

-Luminoso e silenzioso

-Box auto di proprietà

In una delle zone più servite e richieste di Roma, a pochi passi dalla fermate metro A – Cornelia, Baldo degli Ubaldi e Valle Aurelia proponiamo in vendita un ampio trilocale di 112 mq, situato al secondo piano di una palazzina in cortina anni ’60, dotata di ascensore.


Il quartiere è ricco di servizi: supermercati, ristoranti, scuole, negozi di ogni genere e aree verdi. Ottimamente collegato con il centro città grazie alla vicinanza della metropolitana e di numerose linee di trasporto pubblico.


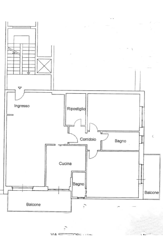
L’immobile, in buono stato interno, è così composto: Ingresso, salone doppio, due camere da letto (una con bagno en suite), cucina abitabile, secondo bagno e due balconi.

A completare la proprietà, un comodo box auto che consente un accesso diretto allo stabile essendo collocato al livello zero stabile stesso, elemento sempre più raro e prezioso in zona.

La soluzione si presenta con: Pavimenti in marmo e in parquet, infissi in legno con doppio vetro (PVC in cucina).

Grazie alla doppia esposizione (Sud-Ovest) l'appartamento risulta molto luminoso.

La casa è ideale per famiglie che cercano un ambiente tranquillo ma ben collegato o per investitori interessati ad attività ricettive o locazioni di medio/lungo termine.

Offriamo servizi di valutazione gratuita e consulenza finanziaria personalizzata con il nostro partner Kiron.

Le informazioni contenute nel presente annuncio sono fornite esclusivamente a scopo informativo e non costituiscono in alcun modo elemento contrattuale.

Seguici sui social per restare aggiornato su tutte le novità immobiliari della zona!

Instagram: @tecnocasabaldodegliubaldi

Facebook: Gruppo Tecnocasa - Roma Baldo degli Ubaldi

Mostra tutto

Nelle vicinanze

Trasporto pubblico Trasporto pubblico
Cornelia
Cornelia
620 m
Baldo degli Ubaldi
Baldo degli Ubaldi
700 m
Valle Aurelia
Valle Aurelia
970 m
Appiano
Appiano
1,0 Km
Risorgimento/S. Pietro
Risorgimento/S. Pietro
2,3 Km
Ricariche auto elettriche Ricariche auto elettriche
The Church Palace
1,1 Km
Roma Gregorio VII | EnelX
1,3 Km
Eneldrive Battistini
1,4 Km
Parcheggio Mercato Trionfale - Musei Vaticani
1,8 Km
Crowne Plaza Rome-St. Peter's
1,8 Km
Scuole Scuole
Istituto di Istruzione Superiore "Domizia Lucilla" - Sez. Agraria
840 m
Istituto Professionale per l'Agricoltura Federico Delpino
870 m
Istituto Comprensivo Diogene Romeo Chiodi
1,2 Km
Istituto Pontificio Sant'Apollinare
1,3 Km
Liceo Scientifico Statale Evangelista Torricelli
1,3 Km
Farmacia Farmacia
Farmacia Colle Aurelio
690 m
Farmacia
770 m
Pulker Farma
770 m
Farmacia Cipro
1,2 Km
Beam
1,3 Km
Ospedali Ospedali
IDI (Istituto Dermopatico dell'Immacolata)
420 m
Clinica Villa Benedetta
650 m
AISPS Roma - Centro di Sessuologia
820 m
San Carlo di Nancy
1,1 Km
Ospedale Oftalmico
1,5 Km
Supermercati Supermercati
Natura Sì
410 m
Conad
570 m
supermercato tigre
590 m
Simply Market
590 m
Carrefour Market
680 m
Negozi Negozi
Pascucci
520 m
Old England
710 m
Mini Market
770 m
Negozi
960 m
Diffusione Tessile
1,3 Km
Bar Bar
Bar
1,0 Km
Bar Roma
1,2 Km
Old Trafford
1,4 Km
Milk and Coffee
1,4 Km
Beere mangiare e co.
1,5 Km
Ristoranti Ristoranti
Lo zio Frankie
450 m
Un Punto Macrobiotico
510 m
Mattarello Aurelia
560 m
Melograno
560 m
Joseph
620 m
Mostra tutto

Caratteristiche

Rif.:
61117383
Piano:
2 di 6 con ascensore (Piano medio)
Box:
1
Balconi:
2
Camere da letto:
2
Arredamento:
Assente
Mostra tutto
Prezzo Prezzo
€ 495.000
Rata mutuo Rata mutuo
€ 2.352 / mese
Spese annue Spese annue
€ 1.300
Proponi il tuo prezzoProponi il tuo prezzo
Immobile valutato con T·Valuta

Classe Energetica

G
G
G
G
G
G
G
G
G
EP globale rinnovabile:
175.00 kW h/m² anno
Anno di costruzione:
1968
Riscaldamento:
Centralizzato
Tipo impianto:
A radiatori
Tipo alimentazione:
Altro

Ti interessa visionare l'immobile?

Fissa un appuntamento  Fissa un appuntamento

Richiedi informazioni

Clicca su Leggi per aprire l'informativa
* Questi campi sono obbligatori

Calcola il tuo mutuo

Semplice e senza impegno
Anticipo

( % )
Mutuo

( % )

pochi semplici passi

inserisci i tuoi dati
Questionario completato
Grazie per aver richiesto un appuntamento senza impegno con un nostro Consulente del Credito e Assicurativo.

Hai inserito correttamente tutti i dati necessari e a breve riceverai una e-mail con un link da convalidare per inviare i tuoi dati.
Affiliato
Studio Baldo Degli Ubaldi Srl
Via Baldo degli Ubaldi, 215 00167 Roma (RM)
Via Baldo degli Ubaldi, 215 00167 Roma (RM)
Zona: Baldo degli Ubaldi-Piazza Irnerio
Mostra su mappa
Orari: dal lunedì al venerdì 09:00-13:00 e 15:00-20.00; sabato 9:00-13:00 e 15:00-19:00
Affiliato
Studio Baldo Degli Ubaldi Srl
Via Baldo degli Ubaldi, 215 00167 Roma (RM)

2026 Tecnocasa Franchising S.p.A. - P. IVA 08365160152 - Via Monte Bianco 60/A 20089 Rozzano (MI). Ogni agenzia ha un proprio titolare ed è autonoma. Privacy policy | Policy utilizzo | Cookie policy